空 間

HOME | 空 間

週末営業・カジュアルスタイル

多様なおもてなし・多彩なお出迎え。ゆったりと時の流れる。そんな空間で


 

週末カフェ~

こじんまりしていながらもゆとりのある間取りと、落ち着ついたインテリア。お飲み物やお食事をゆったりと楽しんでいただきたい。そんな思いで開設したカフェです。
 


 

ゆったりと時の流れる

カフェの営業はウィークエンド限定。基本的に金・土・日の12時から20時半まで、皆様をお待ち申し上げております。お好きなお時間に、お好きなスタイルで、どうぞ。
 


 

そんな空間で

2022年6月のプレオープン以降、徐々にリピーターの方もお見えになり、また、「スイーツプレート」や「カレープレート」など、ボリューム・味わい共に豊か・・・とお褒めいただくこともしばしば。深く感謝申し上げ、一層の励みといたします。
 


 

~café 紅椿それいゆ

家庭的でいつでも気軽に立ち寄れる。それでいて新しい「人やモノとの出会い」があったり、どこか感性をフレッシュに刺激してくれる。そして何より、ゆったりとした時の流れる・・・そんなcaféでありたいと願いながら。
 


 

ギャラリー2Fスペース

外階段を登っていただき、玄関より「靴のままで」ご来店ください。
 


 

いい音・音楽もお出迎え

ゆったりとお過ごしいただくために。ウッド製のスピーカーを核にしたオーディオも、皆様をお迎えします。
 


 

café内は・・・

誠に恐れ入りますが、カフェ・店内は禁煙(および携帯電話での通話のお断り)とさせていただいております。
 


 

※感染対策に関しまして

テーブルのアクリル仕切板・換気と空気清浄機導入:基本に忠実に感染対策を講じています
 

ギャラリーとの連動で

ギャラリー[紅椿 それいゆ]の〝ユーティリティー〟スペース
~多機能・多目的空間として、ギャラリー主催イベント等でも活用します~

カフェだけでない café 空間
~ギャラリー発信も多彩に


母体は『ギャラリー|スペース/サロン』としての[紅椿 それいゆ]。
カフェとギャラリー、二つの空間・二つの運営。
その連動とシナジーから生まれる荒らしい出会い・・・。

そうしたものにワクワクしながら、お客様をお迎えしたいと存じますs。

 

京都・千本通四条上る|紅椿それいゆ 
~「創造する人」 と 「想像する人」のために~


家庭的でいつでも気軽に立ち寄れる。
そんな「ウィークエンド・カジュアルカフェ」。

それでいて新しい「人やモノとの出会い」があったり、
どこか感性をフレッシュに刺激してくれる。
・・・そんな空間へ。

カフェならではの特性も活かし、
ギャラリーとの連動を強めながら、新たな空間の創造を目指します。

ギャラリーイベントでもお会いしましょう!

 

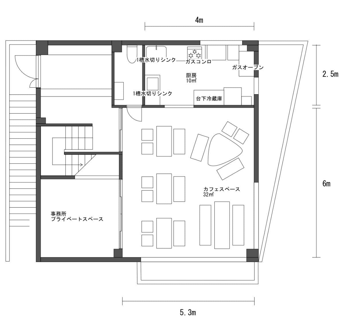
空間レイアウト

※café 紅椿それいゆ の配置図


座席とテーブルの配置・厨房ほか設備の配置など、
café空間の概略を下記平面図によってご案内させていただきます。
ご来店の際・イベントご参加の折りなどに、ご参照いただければ幸いです。